中文
|
EN
|
繁体
国机集团网站群
首页
熊猫体育官网首页入口
新闻中心
业务领域
科技创新
企业文化
党群建设
人力资源
社会责任
所属企业
招标采购
联系我们
信息公开
设计咨询
城市规划
设计咨询
工程咨询
城市规划
医疗建筑
养老建筑
文化观演建筑
酒店建筑
教育建筑
体育建筑
城市综合体
办公建筑
科研建筑
海外建筑
生物实验
工业工程
机场物流
能源环境
室内设计
景观设计
城市规划
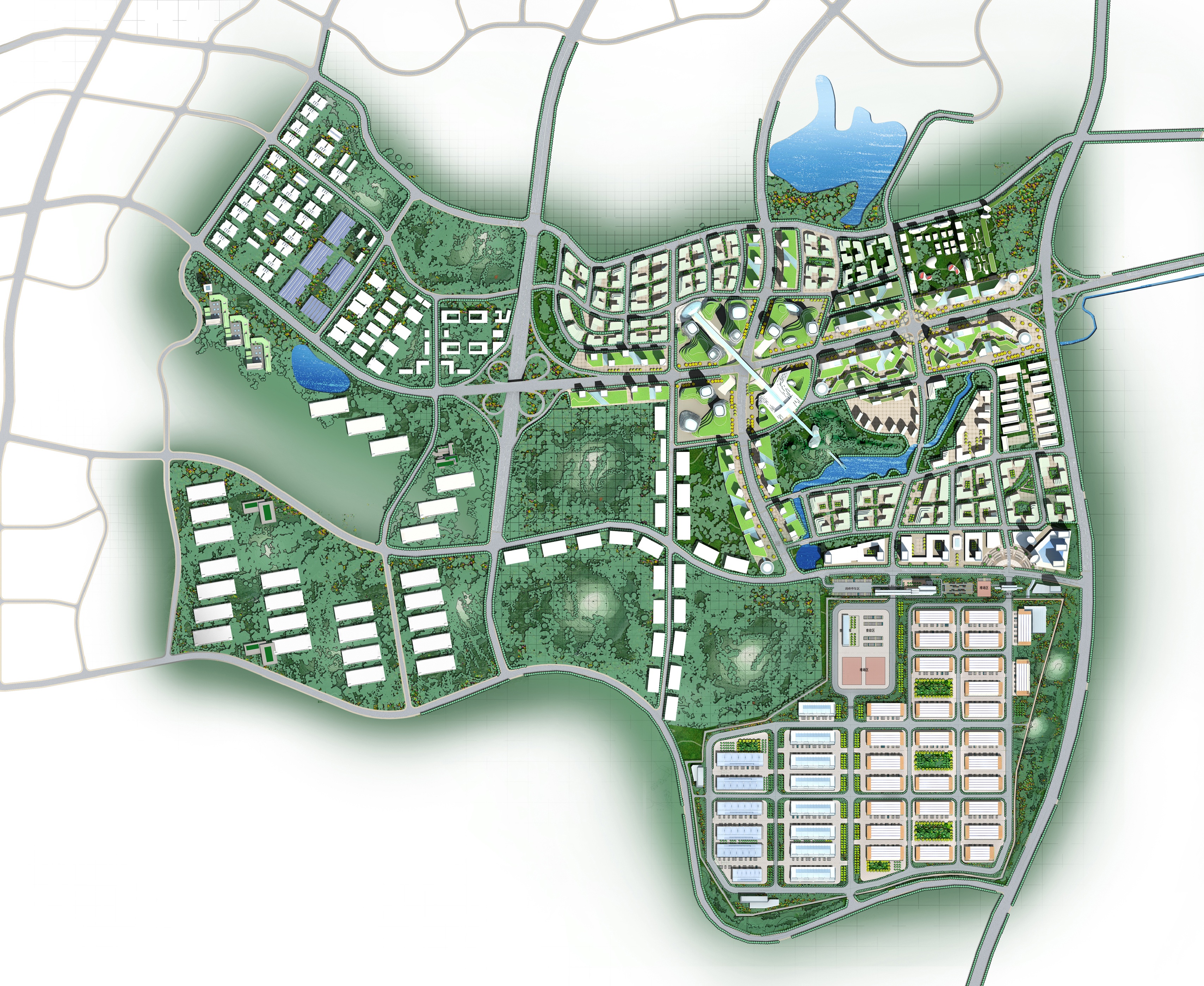
贵州云谷发展规划及城市设计
发布时间:[2019-01-25]
文章来源:
【
大
中
小
】
用地规模:
11.45
平方公里
设计时间:
2014
年
项目地点:贵州省贵安新区
ANBO.COM
|
乐鱼app官网
|
乐鱼网页版登录页面
|
华体平台
|
华体会体育,华体会平台,华体会登录,华体会官网,华体会服务
|
华体会平台
|
世界杯足球官网
|
星空网页版登录入口
|
华体会平台
|